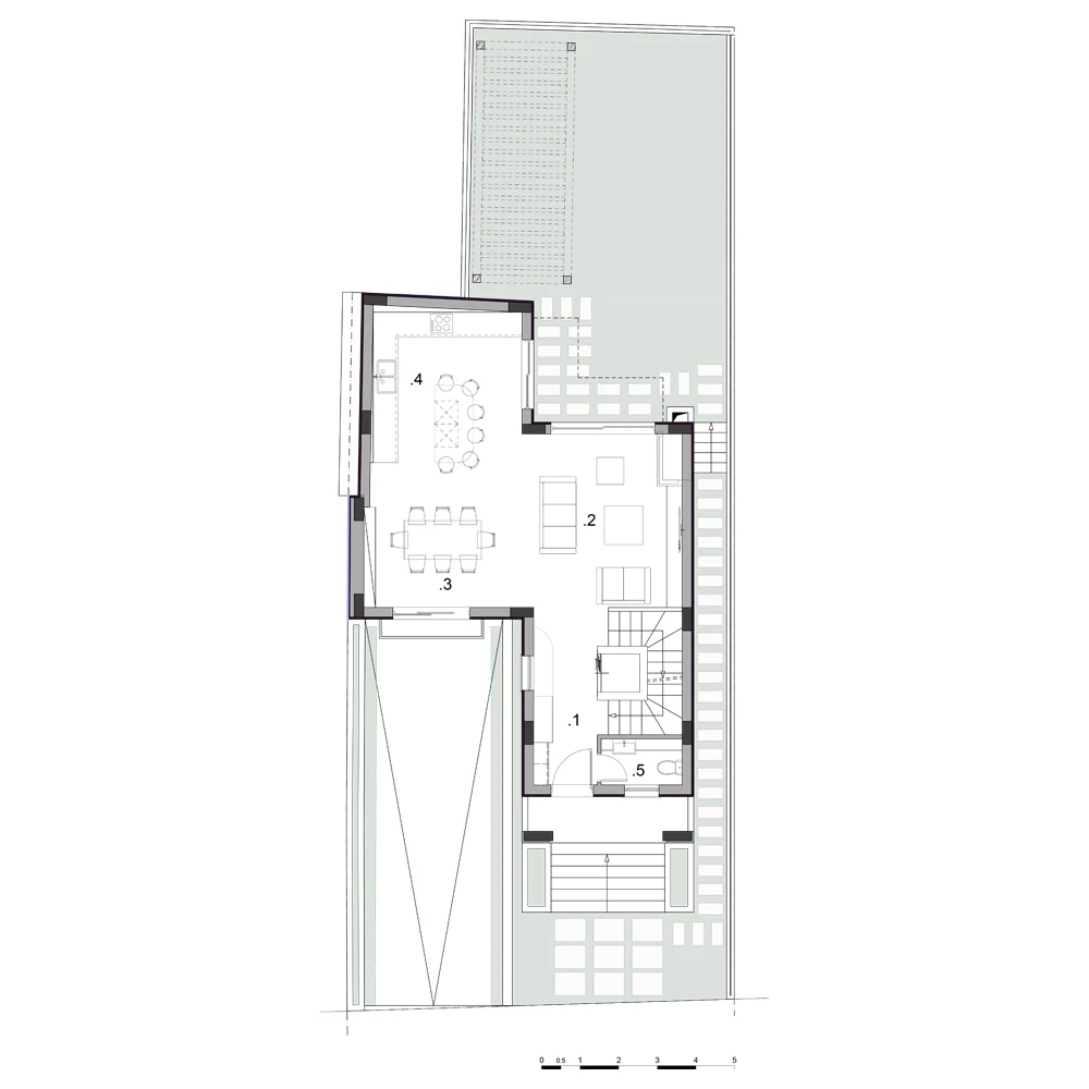
This project proposes a modern classic two-story residence with three bedrooms and a well-designed layout to maximize livability within a restricted plot size. The design aims to seamlessly integrate the home’s modern aesthetic with the rich architectural heritage of the area of Kifisia in Athens, creating a harmonious blend of tradition and contemporary living.
The home’s exterior embraces clean lines, geometric forms, and an emphasis on natural light, reflecting the essence of modern architecture. The overall form of the house is compact and streamlined, ensuring optimal utilization of the limited plot area. Large windows and sliding glass doors connect the interior spaces to the outdoor surroundings, allowing natural light to flood the home and blurring the boundaries between indoors and outdoors.
This modern classic residence in Athens offers a harmonious blend of traditional Greek architectural elements and contemporary design principles. The compact layout, thoughtful interior design, and emphasis on natural light create a comfortable and inviting living space within a limited plot area. The home seamlessly integrates with its surroundings, while its sustainable features contribute to environmental stewardship.
This project demonstrates the ability to create a high-quality living space that respects the architectural heritage of Athens while embracing modern living trends. The home’s compact design, efficient layout, and emphasis on natural light make it an ideal solution for families seeking a stylish and sustainable residence in the vibrant city of Athens.

